Drevené lomené schody pravé v tvare U otvorené EMQD 150R
990€
Náklady na doručenie: 85€
Najdôležitejšie informácie:
✔️Drevené schody so zabiehaním – Dvojramenné
✔️ Pravotočité
✔️ Celková šírka: 77cm
✔️ smrekové drevo
✔️ nenatreté
✔️ bez podstupníc
✔️ Súčasť balenia a balustrade
✔️ určené na svojpomocnú montáž
✔️ Certifikát PEFC
✔️ dostupné aj vo variante: s podstupnicami (zabudované)
✔️ dostupné aj vo variante: Ľavotočité
✔️ Termín realizácie: 4-7 týždňov
Nie ste si niečím istí?
Štandardná konfigurácia nespĺňa vaše očakávania?
Potrebujete niečo iné?
Pošlite nám rozmery a získajte bezplatnú cenovú ponuku!
Popis
schody v tvare U otvorené EMQD 150R – klasické drevené schody ideálne do každého interiéru.
Hľadáte zalomené schody, ktoré nezaberú veľa miesta? Potrebujete riešenie s ľahkou konštrukciou alebo vám viac vyhovujú schody bez podstupníc? Model EMQD 150R je odpoveďou na vaše potreby! Ponúkame zalomené schody, ktoré sú nielen praktické, ale aj estetické a dajú sa prispôsobiť takmer každej miestnosti.
Čím vynikajú naše schody v tvare U?
- Kvalita materiálu: Naše schody sú vyrobené z ľahkého a zároveň odolného smrekového dreva, ktoré zaručuje pevnosť aj krásny prirodzený vzhľad. Drevo je certifikované PEFC. Jednotlivé komponenty sú opracované na profesionálnych CNC strojoch, pílach a brúskach.
- Možnosti prispôsobenia: Schody je možné natrieť na akúkoľvek farbu, aby dokonale ladili s interiérom.
- Rýchla a jednoduchá montáž: Aj bez skúseností so svojpomocnou montážou je zostavenie schodov jednoduché a príjemné.
- Otvorený priestor medzi stupňami: Absencia podstupníc vytvára vzdušný priestor medzi stupňami, vďaka čomu interiér pôsobí priestrannejšie a ľahšie.
- Súčasťou je zábradlie: Zábradlie chráni vnútornú stranu schodov pred pádom.
Prispôsobenie schodov rôznym rozmerom:
Chápeme, že každý priestor má svoje jedinečné rozmery alebo netypické usporiadanie stien. Preto vám odporúčame využiť náš formulár „Zadať vlastné rozmery„, ktorý nám umožní prispôsobiť schody presne vašim potrebám.
Pamätajte — táto služba je úplne bezplatná!
Súčasť balenia:
-
drevené komponenty konštrukcie schodov
-
sada kolíkov a skrutiek
-
montážny návod
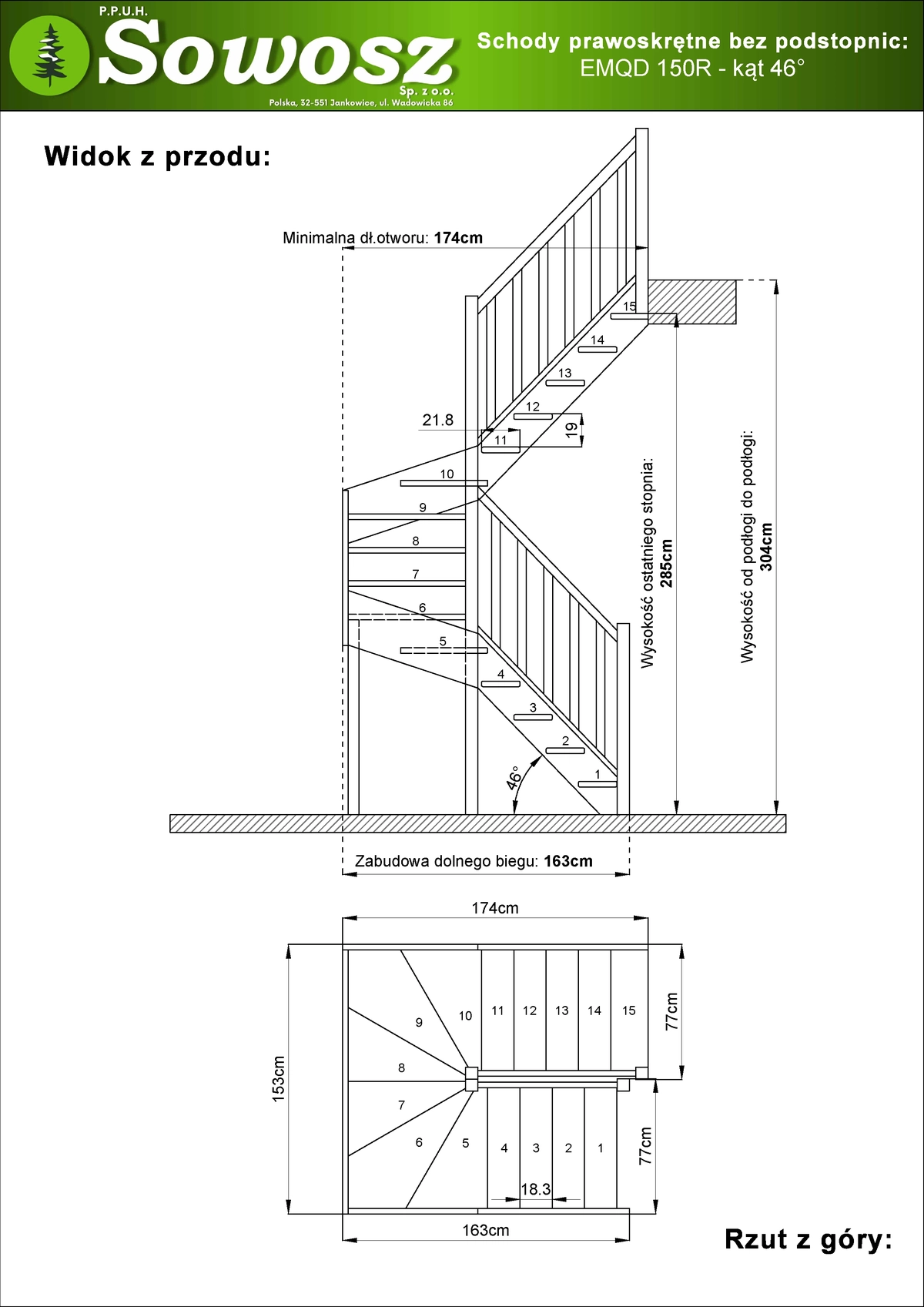
Dane techniczne
| Hmotnosť | 150 kg |
|---|---|
| Typ |
Pravotočité schodisko s otvorenými podstupnicami |
| Zábradlie: |
Súčasť balenia |
| Model |
EMQD 150R |
| Konfigurácia schodiska |
4×19 kąt 46°+6×19+5×19 kąt 46° |
| Hrúbka stupňov a bočníc |
32mm |
| Počet stupňov: |
15 |
| Výška podstupnice |
19cm |
| Uhol: |
46° |
| Hĺbka stupňa |
21.8cm |
| Stupeň viditeľný v pôdoryse |
18.3cm |
| Posledný stupeň vo výške: |
285cm |
| Výška podlažia: |
304cm |
| Minimálny otvor v strope: |
153x174cm |
| Zastavaná plocha (dolné/horné rameno) |
163/174cm |
| Šírka stupňa (v pôdoryse po zložení) |
68.6cm |
| Šírka schodov s bočnicami |
75cm |
| Šírka schodov s bočnicami a zábradlím |
77cm |
DORUČENIE
Schody doručujeme na celom území Slovenska. Doručenie zabezpečujeme vlastnou dopravou priamo na uvedenú adresu.
Doručenie nevykonávame počas víkendov a sviatkov.
Osobný odber:
Osobný odber je možný, avšak pred vyzdvihnutím tovaru zo skladu v Zatore (ul. Władysława Grabskiego 13, 32-640 Zator) je potrebné najprv prísť do našej kancelárie v Jankowiciach (ul. Wadowicka 86, 32-551 Jankowice), kde prevezmete potrebné dokumenty a uskutočníte platbu.
Zasielanie menších dielov:
Prvky ako stupne, zábradlia a iné drobné časti je možné objednať s doručením kuriérom. Dostupnosť tejto možnosti závisí od konkrétneho sortimentu.
Zasielanie schodov kuriérom alebo prepravnou spoločnosťou nie je možné!
Termín dodania:
Odhadovaný termín realizácie (výroba + doručenie) je uvedený pri každom produkte.
V prípade schodov vyrábaných na mieru je termín realizácie uvedený v zaslanej ponuke.
CENA DORUČENIA NA ÚZEMÍ SLOVENSKA:
Doručenie schodov – 85 EUR / 1 komplet
Pri objednávke dvoch alebo viacerých kompletov schodov:
85 EUR za prvé schody + 50 EUR za každé ďalšie
Zasielanie kuriérom (ak je dostupné):
22 EUR za balík s maximálnou dĺžkou 160 cm a hmotnosťou do 25 kg

Facebook
Instagram

