Wooden right-hand L-shaped winder stairs open risers EMQDL 065R
870€
Delivery cost: 280€
Key information:
✔️ Wooden winder stairs – double-flight
✔️ Right turn
✔️ Total width: 67cm
✔️ Spruce wood
✔️ Unpainted
✔️ Open risers
✔️ Included a balustrade
✔️ Designed for self-assembly
✔️ Certificate: PEFC
✔️ Also available in: Closed tread stairs
✔️ Also available in: left turned
✔️ Lead time: 3–5 weeks
Not sure about something?
The standard configuration doesn't meet your expectations?
Need something different?
Send us the dimensions and get a free quote!
Description
„L” shaped winder stairs with open risers EMQDL 065R – Classic wooden stairs, perfect for any interior.
Are you looking for winder stairs that won’t take up much space? Do you need a solution with a light form, or perhaps stairs without risers suit your interior design better? Our EMQDL 065R model is the answer to your needs! We offer winder stairs that are not only practical but also aesthetically pleasing and can be adapted to virtually any room.
What makes our „L” shaped winder stairs stand out?
- Material Quality: Our stairs are made from lightweight and durable spruce wood, which guarantees not only solidity but also a beautiful natural appearance. The wood is certified with PEFC. The components are processed on professional CNC machines, saws, and sanders.
- Customization Options: You can paint the stairs in any color, allowing them to perfectly match the decor of your interior.
- Quick and Easy Installation: Even if you are not an experienced DIYer, assembling these stairs will be easy and enjoyable.
- Open Space Between Steps: The absence of risers creates an open space between the steps, giving the interior a sense of spaciousness and lightness.
- Includes balustrade: the balustrade protects the inner side of the stairs from falling.
Customize the stairs to different dimensions:
We understand that every room has its unique measurements or an unusual wall layout. That’s why we encourage you to use our “Submit Your Own Dimensions“ form, which allows us to tailor the stairs to your needs.
Remember — this service is free of charge!
The set includes:
wooden components of the stair structure
a set of dowels and screws
assembly instructions
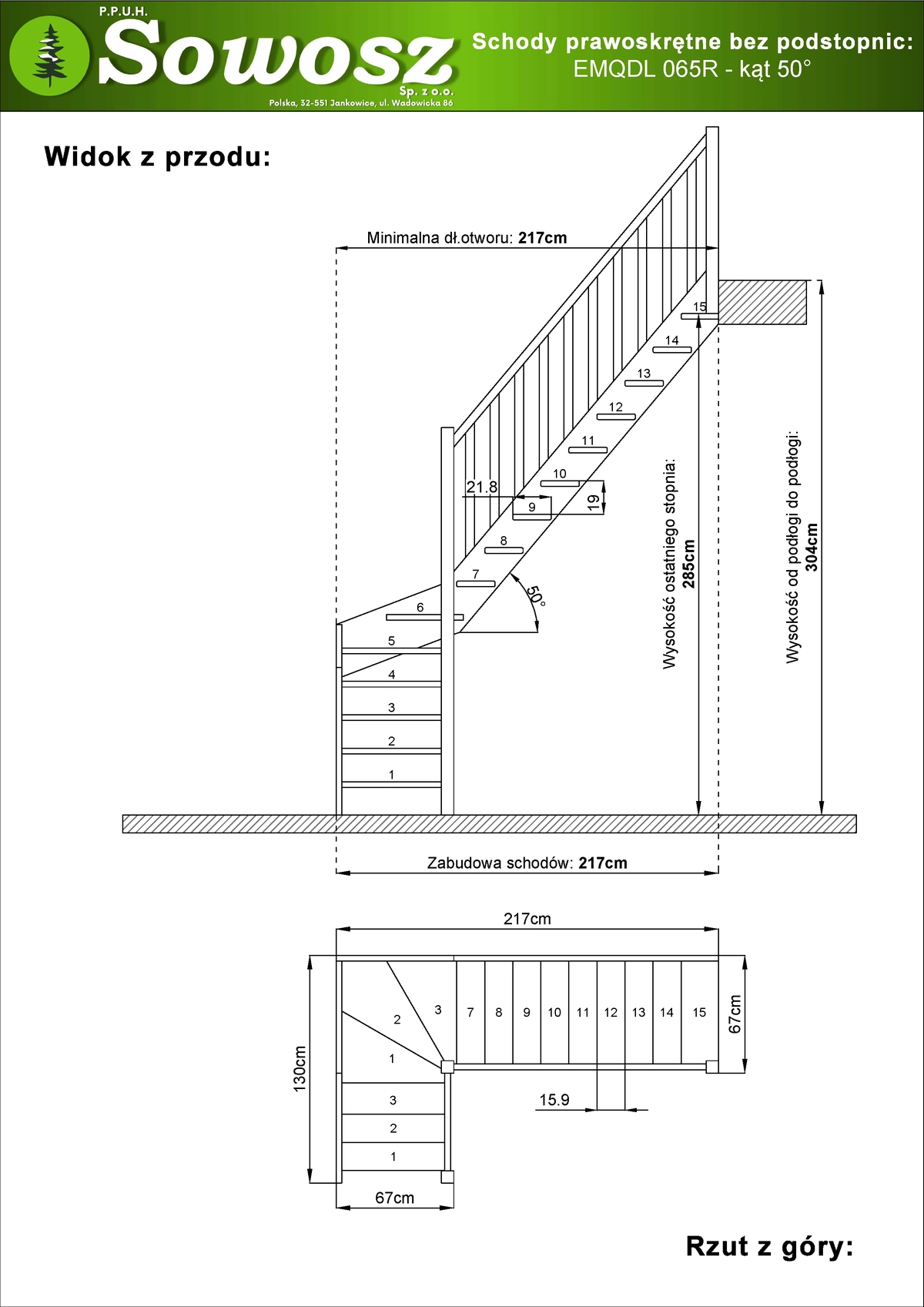
Dane techniczne
| Weight | 150 kg |
|---|---|
| Type |
right-turn open-riser |
| Balustrade |
Included |
| Model |
EMQDL 065R |
| Staircase configuration: |
3×19 kąt 50°+3×19+9×19 kąt 50° |
| Tread and stringers thickness: |
32mm |
| Number of treads: |
15 |
| Riser height: |
19cm |
| Angle: |
50° |
| Tread depth: |
21.8cm |
| Tread visible in top view: |
15.9cm |
| The last tread at a height of: |
285cm |
| Floor height: |
304cm |
| Minimum opening: |
217cm |
| Total run length (lower flight / upper flight): |
130/217cm |
| Tread width (after folding): |
58.6cm |
| Width of stairs with stringers |
65cm |
| Width of stairs with stringers and handrail |
67cm |
DELIVERY
We deliver stairs using our own transport fleet only within Poland and Slovakia.
Slovakia:
Delivery cost: 85 EUR
Germany, The Netherlands, Belgium:
We use an external carrier. Delivery is made directly from our warehouse to the client.
Delivery cost: 250 EUR
Norway, Sweden (NOR-SPEED): We use an external carrier. Delivery is possible in the southern parts of Norway and Sweden:
Kristiansand, Sogne, Mandal, Lyngdal, Flekkefjord, Vikesa, Algard, Sadnes, Stavanger, Randaberg, Haugesund, Stord, Bergen, and other locations along the E39 route.
Szczecin - Oslo route via: Malmo, Helsinborg, Goeteborg, Svinesund, Sarpsborg, Oslo, Moss, Drobag, Sandvika, Asker, Drammen, Tonsberg, Sandefjord, Larvik, Arendal, Grimstad.
Delivery cost Norway: 40 EUR to the carrier in northern Poland + carrier fee for delivery to Norway + customs clearance.
Delivery cost Sweden: 40 EUR to the carrier in northern Poland + carrier fee for delivery to Sweden.
Sweden (TPS-TRANS):
Delivery cost: 40 EUR to the carrier in northern Poland + carrier fee for delivery to Sweden.
The carrier's service area can be checked at: https://english-tps-trans.weebly.com/our-route.html
Denmark: We use an external carrier: Daniel Wenta. PHONE: +48661147233
Delivery cost: 40 EUR to the carrier in northern Poland + carrier fee for delivery to Denmark.
Personal Pickup: In addition to shipping, personal collection is available from our warehouse: Władysława Grabskiego 13, 32-540 Zator.
Courier for Small Items: Smaller items, such as steps and railings, can be ordered with a courier shipping option. The availability of this delivery option depends on the selected product range.
Lead Time: The estimated lead time (production + delivery) is stated next to each product. For custom-made stairs, the lead time is indicated in the sent offer.
PAYMENT METHODS
When making a purchase in our store, you can choose the following payment methods:
CASH ON DELIVERY (COD): (Only for selected products). By choosing this method, you pay at the time of order delivery. Depending on the technical capabilities of the courier (DPD, UPS, DHL, InPost, others), you may pay by cash, card, or BLIK upon receipt.
TRADITIONAL BANK TRANSFER: To the company account. Transfer details (payment in EUR):
Santander Bank Polska S.A. PL 13 1910 1048 2105 9924 9225 0002 SWIFT: WBKPPLPPXXX Beneficiary: PPUH SOWOSZ Sp. z o.o. Wadowicka 86, 32-551 Jankowice
In this case, you can pay just the deposit (the deposit amount must be agreed upon by phone/email) or prepay the full amount. Order processing begins once the payment is credited to our account. In the case of a deposit payment, the remaining amount can be paid upon delivery: by cash or card!
Important: We accept payments only in EUR!
INSTANT PAYMENTS: Processed by Montonio. The fastest, most convenient, and safest form of payment. You can choose bank payment, card payment, or BLIK.
We recommend paying by card. Fast bank transfers are limited by the payment operator to a few countries and selected banks (more info here: Montonio bank's list)
If you do not see the instant payment option—please contact us, and we will help!

Facebook
Instagram

